30 Acorn Crescent
Available for Quick Possession at Monterey Estates North in Brandon, Manitoba
3 Bedrooms
2 Full Bathrooms
1520 sq ft + 24 x 24 double garage with double doors.
The Details of 30 Acorn Crescent
Ensuite features a walk-in shower with glass doors
Main bathroom features tub/shower combo
Very large iIsland with overhang for additional prep space and seating
Full-tile backsplash in the kitchen
Quality cabinetry
Stainless steel kitchen appliances (fridge, stove, dishwasher, over-the-range microwave)
Electric furnace and hot water tank
Modern lighting throughout
Central Air Conditioning
Why you’ll love 30 Acorn Crescent
30 Acorn Crescent stands out from other retirement living options by offering the perfect balance of independence, comfort, and modern design. Instead of downsizing into a smaller, shared space, you enjoy a full, private home with 3 bedrooms, 2 bathrooms, and a spacious 1,520 sq ft layout designed for easy one-level living.
What truly sets this home apart is its thoughtful features, including the oversized kitchen island with seating and prep space, dark grey cabinetry, full-tile backsplash, and included stainless steel appliances.
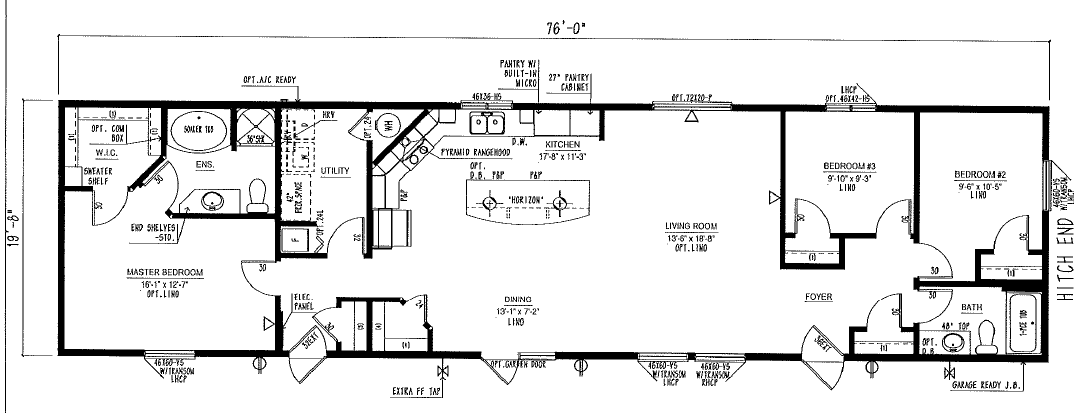
The Floorplan
Interested in learning more about 30 Acorn Crescent at Monterey Estates North?

